Lugao компаниясы шығарған GW13 айырғыш қосқышының бейтарап нүктесін жерге тұйықтаудан қорғау құрылғысы трансформатордың бейтарап нүктесінің оқшаулауын найзағайдың шамадан тыс кернеуінен, коммутациялық асқын кернеуден және қуат жиілігінің (өтпелі) асқын кернеуінен қорғауға арналған. Лугао кәсіпқой өндірістік жабдыққа және бай экспорттық тәжірибеге ие және ұсталған түгендеу тез жеткізілуі мүмкін.
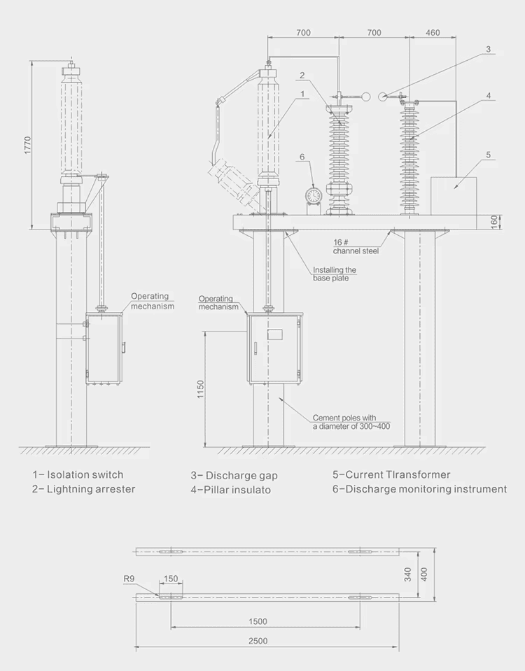
Lugao компаниясының GW13 айырғыш қосқышы Бейтарап нүктені жерге қосудан қорғау құрылғылары негізінен 110кВ және 220кВ қуат трансформаторларының бейтарап нүктелік тізбектерінде қолданылады. Олар трансформатордың бейтарап нүктесінің оқшаулауын асқын кернеудің зақымдануынан қорғайды және трансформатордың жерге қосылған және жерленбеген бейтарап нүктенің жұмыс режимдері арасында ауысуына мүмкіндік береді. Найзағайдан, қуат жиілігінен және ауыстырып-қосқыш асқын кернеулерден бір уақытта қорғау қажет болған кезде қорғаныс үшін саңылау мен разрядтағышты параллель қосуға болады. GW13 сериялы бейтарап нүктенің асқын кернеуден қорғағышы - айырғышты, мырыш оксиді разрядтағышты, разряд саңылауын және ток трансформаторын біріктіретін толық жиынтық. Оның жоғары жылу сыйымдылығы мен тамаша қорғанысы, икемді конфигурациялары және пайдаланудың қарапайымдылығы бар. Пайдаланушы қажеттіліктерін қанағаттандыру үшін таза саңылау дизайны немесе айырғыш пен разряд саңылауының комбинациясы таңдалуы мүмкін.
GW13 қорғаныс құрылғысының техникалық сипаттамалары
| ltem |
Бірлік |
Аргумент |
||
| Өнім үлгісі |
|
Лугао-GW13-110 |
Лугао-GW13-220 |
|
| Номиналды кернеу |
К.В |
110 | 220 | |
| Трансформатордың бейтарап кернеуі |
Толық найзағай және кесуге төзімді кернеу (ең жоғары) |
К.В |
250 | 400 |
| 1мин қуат жиілігі (тиімді мән) |
К.В |
95 | 200 | |
| Бейтарап оқшаулау қосқышы |
Номиналды ток |
A | 630 | 630 |
| Жұмыс механизмі |
|
CS14G (қолмен) немесе CJ2 (электрлік) |
||
| Мырыш оксидін ұстағыш |
Номиналды кернеу (RMS) |
К.В |
72 | 144 |
| Үздіксіз жұмыс кернеуі |
К.В |
58 | 116 | |
| Тұрақты 1мА анықтамалық кернеу |
К.В |
103 | 205 | |
| Найзағай импульстік токтың қалдық кернеуі |
К.В |
186 | 320 | |
| Шығару саңылауы |
Саңылау электродтарының арақашықтық диапазоны |
мм | 90-150 | 220-320 |
| Қуат жиілігінің разрядының кернеу диапазоны |
К.В |
50-83 | 100-166 | |
| 1,2/50us импульстік разряд кернеуі |
К.В |
120-190 | 250-320 | |
| Ток трансформаторы |
Түр |
|
Эпоксидті шайыр 10кв типті толығымен жабық тірек құйылды |
|
| Трансформация коэффициенті |
|
100/5,200/5,300/5,40015,50015,600/5 |
||
